O medicamento mais frequentemente utilizado na Estação Espacial Internacional são comprimidos para dormir, pois os astronautas em órbita vivem em um ciclo de luz que não corresponde à sua biologia. Seus corpos não sabem quando dormir ou quando acordar, e essa perturbação dura semanas ou meses, afetando seu desempenho, humor e saúde física.

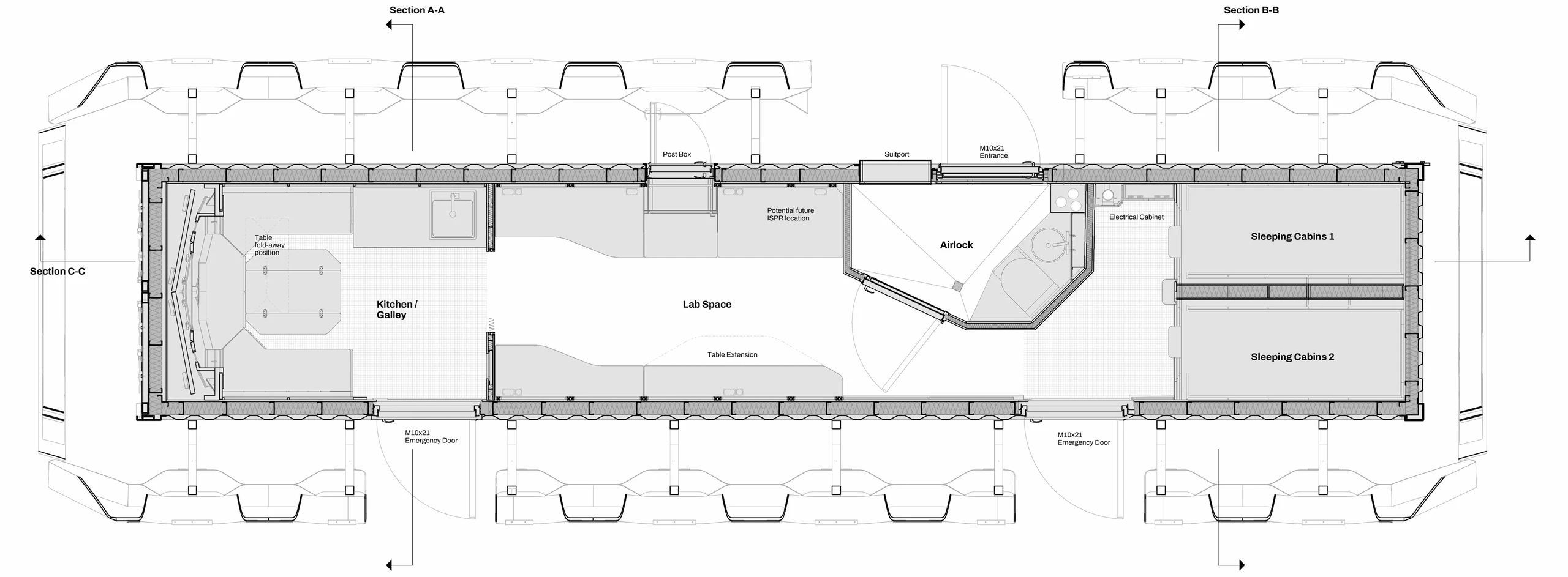
Para a SAGA Space Architects, o estúdio de arquitetura e design espacial com sede em Copenhague, fundado por Sebastian Aristotelis e Karl-Johan Sørensen, esse não é um problema da espaçonave. É uma falha do projeto da habitação, e para aqueles que desejam ir à Lua, Marte e ao fundo do oceano e viver lá por um bom tempo, a estrutura precisa se adaptar às suas necessidades em primeiro lugar.

O trabalho da SAGA expande a ideia de lar para além de ambientes familiares, propondo habitats que respondem a novas condições, ao mesmo tempo que sustentam a vida humana, o conforto e a conexão. O estúdio desenvolve projetos que combinam engenharia, pesquisa e design arquitetônico, testando suas ideias em locais extremos da Terra enquanto imagina sua aplicação além dela.

Desde abrigos inspirados na Lua, testados em paisagens árticas, até habitats subaquáticos e conceitos projetados para a vida em Marte, seu trabalho aborda a arquitetura como uma ferramenta de exploração, abrindo novas possibilidades sobre como e onde poderemos viver. Vale muito a pena acessar aqui e conhecer mais sobre os projetos.

